8 (8482) 52-99-89 Услуги, отделка, заборы
8 (927) 782-99-89 Сбыт материалов, аренда техники
8 (8482) 40-89-97 Cтроительство домов
8 (937) 233-88-94 Строительство дач, бань
ГЛАВНАЯ ЗЕМЛЯНЫЕ РАБОТЫ ПРОЕКТЫ БУРЕНИЕ НА ВОДУ ЗАКАЗ ОНЛАЙН ПРАЙС ЗАКАЗ О КОМПАНИИ КОНТАКТЫ
СТРОИТЕЛЬСТВО

РЕМОНТ И ОТДЕЛКА

УСЛУГА

ДОСТАВКА СЫПУЧИХ МАТЕРИАЛОВ

АРЕНДА СПЕЦТЕХНИКИ

Поделиться инфо

Понравилась статья?
Поделись ссылкой на нее со своими друзьями!









Главная >> Проекты домов >> Проект дома с мансардой и большими окнами




Проект дома с мансардой и большими окнами, Д-399.23



Проект Д-460


Дополнителный вид
Строительство дома в Тольятти-


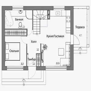
План 1-го этажа
План дома
План 2-го этажа
План дома


Загородный дом

Характеристики
Площадь дома, м2 115.00 м2
Габариты дома: 10.8х14.8м
Фундамент: свайно-ленточный ж/б
Стены наружные: керамзитобетонный блок
Перегородки: блоки
Количество этажей: 2 этажа
Угол наклона крыши: 30 гр.
Базовая стоимость строительства коробки (материал и работа) 1 200 000 руб.

В стоимость строительства (коробки) дома с мансардой и большими окнами входят работы:


Строительство свайно-ленточного фундамента (на глубину 0.6м):

  • Геодезическая разбивка площадки с выносом осей, ручная разработка траншеи под ленту, контроль рытья траншеи, ручная доработка грунта (без вывоза).
  • Устройство песчаного и щебеночного основания 100мм.
  • Устройство гидроизоляции (Техноэласт П).
  • Установка опалубки, вязка арматурных каркасов AIII (по проекту), установка закладных (гильз) под коммуникации.
  • Укладка бетона марки М200
  • Устройство гидроизоляции (битумная обмазочная).

 

Строительство стен из керамзитобетонных блоков:

  • Кладка наружных стен из керамзитобетонных блоков толщиной 200 мм.
  • Кладка внутренней несущей стены из блоков.
  • Кладка перегородочных стен из блоков 120 мм.
  • Устройство оконных и дверных перемычек.

 

Строительство деревянного или монолитного ж/б перекрытия 160-200мм:

  • Устройство горизонтального армопояса для ж/б перекрытия, вязка арматуры AIII.
  • Устройство плиты перекрытия 160-200 мм (бетон марки В22,5).
  • При перекрытии по деревянным балкам утепление по периметру перекрытия (м/в плита 50 мм).

 

Устройство кровли с металлочерепицей:

  • Монтаж стропильной системы из бруса (монтаж, антисептирование, гидроизоляция).
  • Укладка теплоизоляции (утеплитель 100 мм URSA), пароизоляции (Juta), гидро-ветробарьера.
  • Металлочерепица.

 

Дверные блоки:

  • Монтаж входной двери

 


Дополнительные работы 'ПОД ОТДЕЛКУ' и 'ПОД КЛЮЧ':


Внешние/внутренние отделочные работы и прокладка инженерных систем включены только в комплектацию 'ПОД ОТДЕЛКУ' и 'ПОД КЛЮЧ'.

Наружная отделка частного дома:

• Отмосток вокруг дома.
• Декоративная фасадная штукатурка 'короед' либо 'шуба'.
• Облицовка фасада красным кирпичом.
• Облицовка фасада декоративным, крашеным (рваным) блоком.
• Сайдинг.
• Имитация бруса (бревна).

Полы:

• Теплоизоляция пола 1-го и 2-го этажа, от 50 мм (минеральная вата Урса, Кнауф, Изовер).
• Плитка.
• Ламинат.

Отделочные работы в доме:

• Устройство монолитного пола, стяжка пола.
• Наливной пол.
• Монтаж теплого пола.
• Подшивка потолков стекломагнезит или гипсокартонном (влагостойкий) под окраску.
• Плинтус на пол и потолок.
• Теплоизоляция стен.
• Оштукатуривание внутренних стен и несущих перегородок.
• Покраска стен и потолка.

Крыша:

• Монтаж дымохода.
• Подшивка карнизных свесов и монтаж софитов.
• Установку водосточной системы.

Окна:
• Пластиковые, двойные зимние со стеклами 1.2 х 1.4 м

Инженерные сети:

• Монтаж проводки, розеток, выключателей.
• Монтаж воды в дом (включая бурение на воду по необходимости).
• Отопление: монтаж радиаторов до котла.
• Канализация (септик и разводка труб по дому).


Для строительства дома с мансардой и большими окнами применяются качественные, сертифицированные материалы. На выполненные работы по строительству дома из керамзитобетонных блоков «под ключ» предоставляется гарантия.

Состав работ и материалов может быть изменён по желанию заказчика.
Любой типовой проект можно изменить по Вашему желанию.

Незначительные изменения: адаптация проекта: внесение изменений в конструкции фундамента и в материалы стен, теплотехнический расчет конструкций стен. Перенос и/или изменение размеров окон или дверей. Эти изменения на стоимость проекта не влияют.

* Средние (мелкие) изменения: перепланировка, перенос перегородок (не несущих), убрать / добавить балкон, изменение типа перекрытия (не двигая стен), высоты стен мансардного этажа, крыши.
** Значительные изменения: влекущие за собой изменение объемно-планировочных и конструктивных решений – перенос и сдвиг несущих стен.

Адаптация проекта

Адаптация проекта под геологию участка и грунты, а так же изменения в материалах стен и внешней отделки дома - производятся БЕСПЛАТНО.

Представленные на сайте проекты загородных домов, могут быть реализованы в любой из строительных технологий и с применением различных строительных материалов: кирпич, керамзитобетонный блок, термокерамика (теплый кирпич), газобетон, пеноблок.

Облицовка фасада дома, также может быть выполнена из различных отделочных материалов: кирпич облицовочный, фасадная структурная штукатурка (с утеплителем и без), фиброцементная плита, сайдингом (пластиковые панели или металлосайдинг).

Заявленная стоимость дома не является публичной офертой и предполагает примерную цену строительства дома для оценки объема Ваших инвестиций. Окончательная стоимость уточняется после получения адаптированного проекта и выезда на земельный участок.

Для выполнения точного расчета строительства можно выслать план дома или указать ссылку на проект с сайта. Запрос по электронной почте обрабатываются быстро при указании обратного контакта.

Расчет сметы за один день. Узнайте сколько стоит построить дома с мансардой и большими окнами в Тольятти.

 

СТРОИТЕЛЬСТВО ДОМА
ПРОЕКТЫ ДОМОВ
ВИДЫ УСЛУГ:
ПОЛЕЗНАЯ ИНФОРМАЦИЯ

БЫСТРЫЙ ЗАКАЗ
Помеченные * поля обязательные для заполнения
* Имя:
* Телефон:  
* E-mail:

Сообщение

*  Введите сумму на картинке:

НОВОСТИ